Panoramica
- Aggiornato il:
- Giugno 24, 2025
- 5 Letti
- 1 Bagni
- 318.00 m2
Descrizione
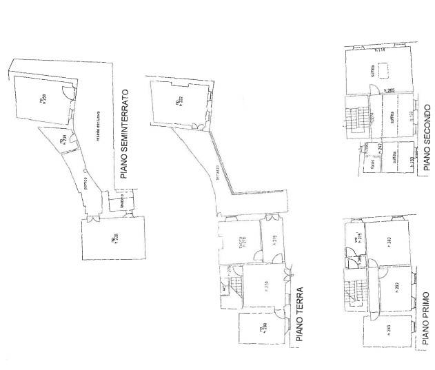
A0343 Bagni di Lucca Proprietà composta da due abitazioni semi indipendenti e collegabili tra loro, situata in una piccola località sulle colline di Bagni di Lucca. Inserita in un piccolo agglomerato di case con parcheggio pubblico e raggiungibile da una strada collinare, necessita di lavori di ristrutturazione.
La proprietà si compone di una casa di dimensioni generose e di una piccola casa in aderenza, tra loro comunicanti in passato. Le due case si affacciano su una magnifica terrazza assolata rivolta sui colli della Val di Lima, che a sua volta, grazie ad una scala in pietra, può godere della resede privata e del piccolo orto dove è possibile realizzare un giardino fiorito con piante aromatiche ed organizzare uno spazio verde per il relax e i momenti conviviali.
Alle abitazioni sono di pertinenza un fienile che si affaccia sulla resede e sul giardino, alcuni locali ad uso cantina ed un grazioso lavatoio. Questi spazi si rivelano delle opportunità per ricavare una dependance adibita all’ospitalità o al deposito di tutto ciò che serve in una casa di campagna.
All’abitazione principale si accede da una corte, in comune con altre abitazioni, lastricata in pietra secondo la tradizione locale e con caratteristica forma a ferro di cavallo.
Vi è poi un altro ingresso esposto a sud sul lato della terrazza e orto.
L’abitazione più grande è disposta su due livelli principali, con tre grandi camere e un bagno, un’ampia zona giorno, oltre alle soffitte di dimensioni generose dove è possibile ricavare dei locali dedicati al relax, allo studio o all’ospitalità.
La piccola abitazione è composta solamente da quattro stanze, di cui due al piano terra e due al piano primo e in essa sembra che il tempo si sia fermato ai primi anni del secolo scorso, come testimoniano le antiche decorazioni murali a rullo.
La proprietà è inserita in un grazioso borgo con case in pietra, percorso da piccole strade lastricate dove ogni angolo è una sorpresa, reso affascinante da antichi portoni e rose antiche profumate.
La zona, che presenta un ambiente naturale severo e poco frequentato, tra montagne nude, torrenti e borghi di pietra, è ricca di storia e cultura.
Nelle immediate vicinanze della proprietà si scopre la più antica chiesa romanica della Val di Lima, la cui esistenza è attestata nel 772 e il museo adiacente, che sono delle vere e proprie gemme storiche.
La ricchezza della rete escursionistica offre inoltre esperienze avventurose imperdibili nella natura con escursioni a piedi, a cavallo, in mountain bike o e bike oltre al rafting e all’acqua trekking. E per chi cerca un po’ di adrenalina, ci sono anche escursioni in Quad Vespa, Enduro e 4 x 4 il tutto immerso nella splendida e incontaminata bellezza della montagna toscana.
Nelle immediate vicinanze un bar/ristorante, un alimentari/tabacchi e una macelleria.
Nella frazione è presente la scuola materna ed elementare.
immobile in classe energetica “G”.
DISTANZE
Lucca 36 km, Firenze 110 km, Versilia 63 km, Abetone 33 km, aeroporto di Pisa 72 km, stazione ferroviaria 15 km.

































































